LRAAD
About Us Multi-Residential Residential Art & Design
Contact Us
About UsMulti-ResidentialResidentialArt & Design
LRAAD
Contact Us
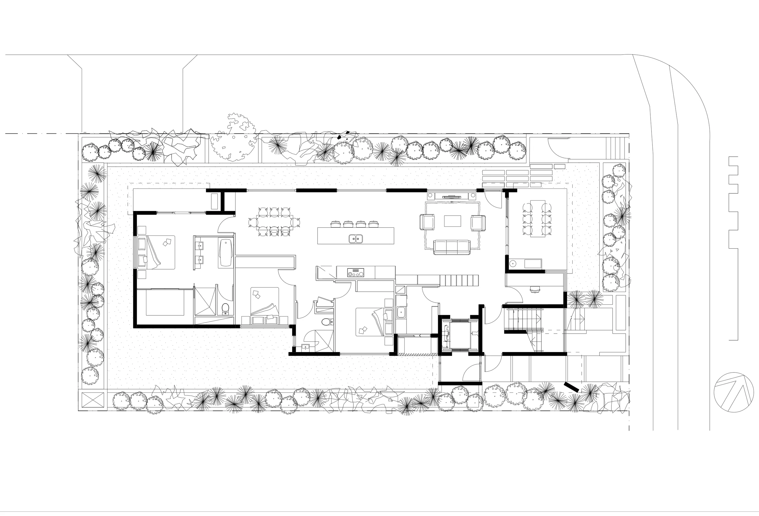
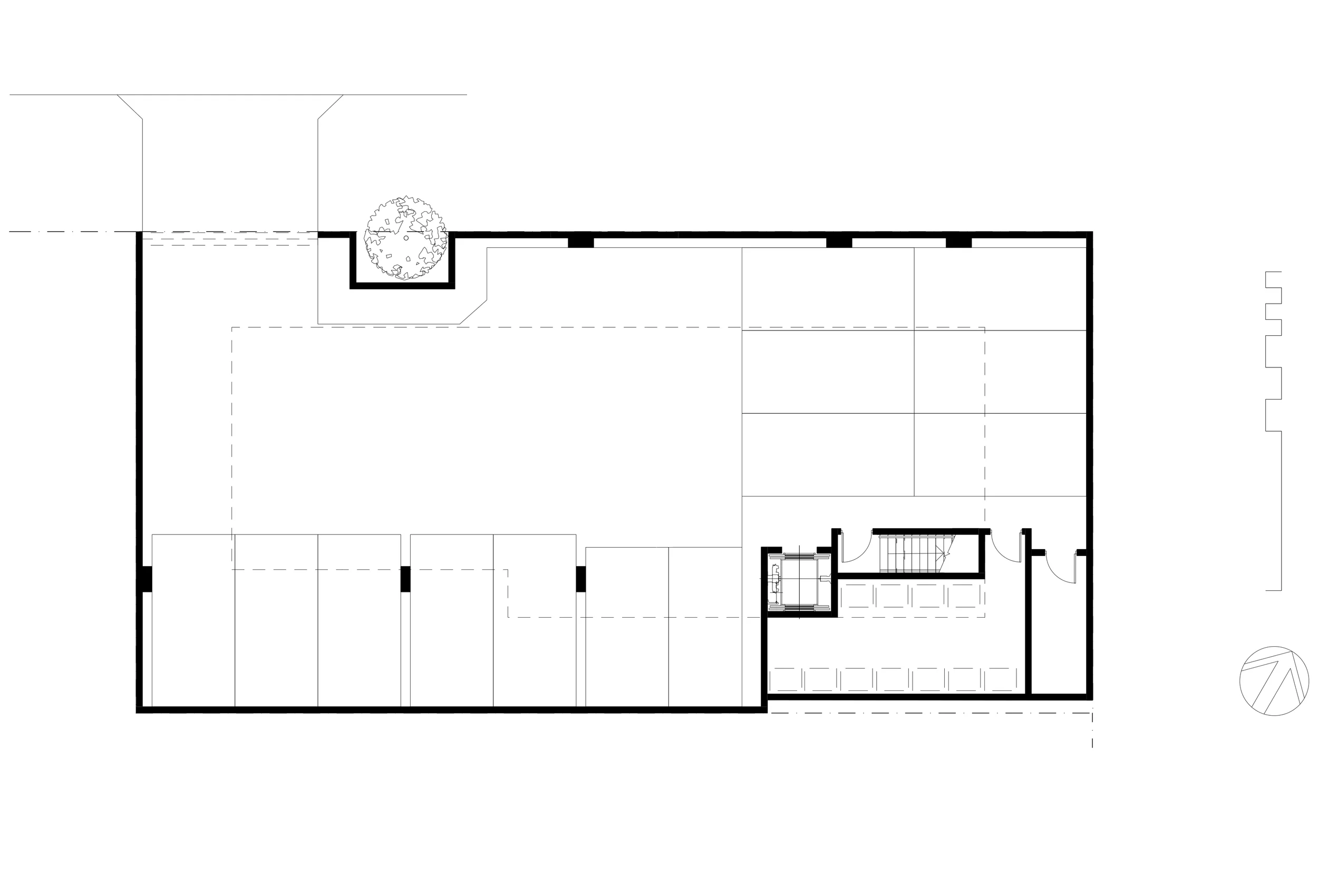
 Eden Apartments is boutique development located on a small lot on the hill at Rainbow Bay, Coolangatta, Queensland. The proposed development provides 7 single floor luxury apartments that have expansive views and are designed to capture cooling coas
 Eden Apartments is boutique development located on a small lot on the hill at Rainbow Bay, Coolangatta, Queensland. The proposed development provides 7 single floor luxury apartments that have expansive views and are designed to capture cooling coas

Eden Apartments is boutique development located on a small lot on the hill at Rainbow Bay, Coolangatta, Queensland. The proposed development provides 7 single floor luxury apartments that have expansive views and are designed to capture cooling coastal breezes. Adopting a varied material palette, the proposed development has been designed to be low in maintenance and provide an aesthetic of texture and shade.

 

Image copyright of Liam Radich Architecture Art & Design Pty Ltd.

 Image copyright of Liam Radich Architecture Art & Design Pty Ltd.

Image copyright of Liam Radich Architecture Art & Design Pty Ltd.

 Image copyright of Liam Radich Architecture Art & Design Pty Ltd.

Image copyright of Liam Radich Architecture Art & Design Pty Ltd.

 Image copyright of Liam Radich Architecture Art & Design Pty Ltd.

Image copyright of Liam Radich Architecture Art & Design Pty Ltd.

 Image copyright of Liam Radich Architecture Art & Design Pty Ltd.

Image copyright of Liam Radich Architecture Art & Design Pty Ltd.

 Image copyright of Liam Radich Architecture Art & Design Pty Ltd.

Image copyright of Liam Radich Architecture Art & Design Pty Ltd.

1 2 3 4 5 6
Previous Next
 Eden Apartments is boutique development located on a small lot on the hill at Rainbow Bay, Coolangatta, Queensland. The proposed development provides 7 single floor luxury apartments that have expansive views and are designed to capture cooling coas
 Image copyright of Liam Radich Architecture Art & Design Pty Ltd.
 Image copyright of Liam Radich Architecture Art & Design Pty Ltd.
 Image copyright of Liam Radich Architecture Art & Design Pty Ltd.
 Image copyright of Liam Radich Architecture Art & Design Pty Ltd.
 Image copyright of Liam Radich Architecture Art & Design Pty Ltd.
28 Twenty Sixth Ave,
Palm Beach, QLD, 4221,
Australia
0481 008 006 lraad@mail.com

Liam radich architecture, art & design pty LTd | 28 twenty sixth ave, palm beach, qld, 4221 | 0481 008 006