LRAAD
About Us Multi-Residential Residential Art & Design
Contact Us
About UsMulti-ResidentialResidentialArt & Design
LRAAD
Contact Us
 Located in one of Melbourne's middle ring suburbs, this project provides an architectural transition from the adjacent apartment building to the north and the neighbouring house to the South.  Four townhouses have been crafted onto the 454sqm site w
 Located in one of Melbourne's middle ring suburbs, this project provides an architectural transition from the adjacent apartment building to the north and the neighbouring house to the South.  Four townhouses have been crafted onto the 454sqm site w

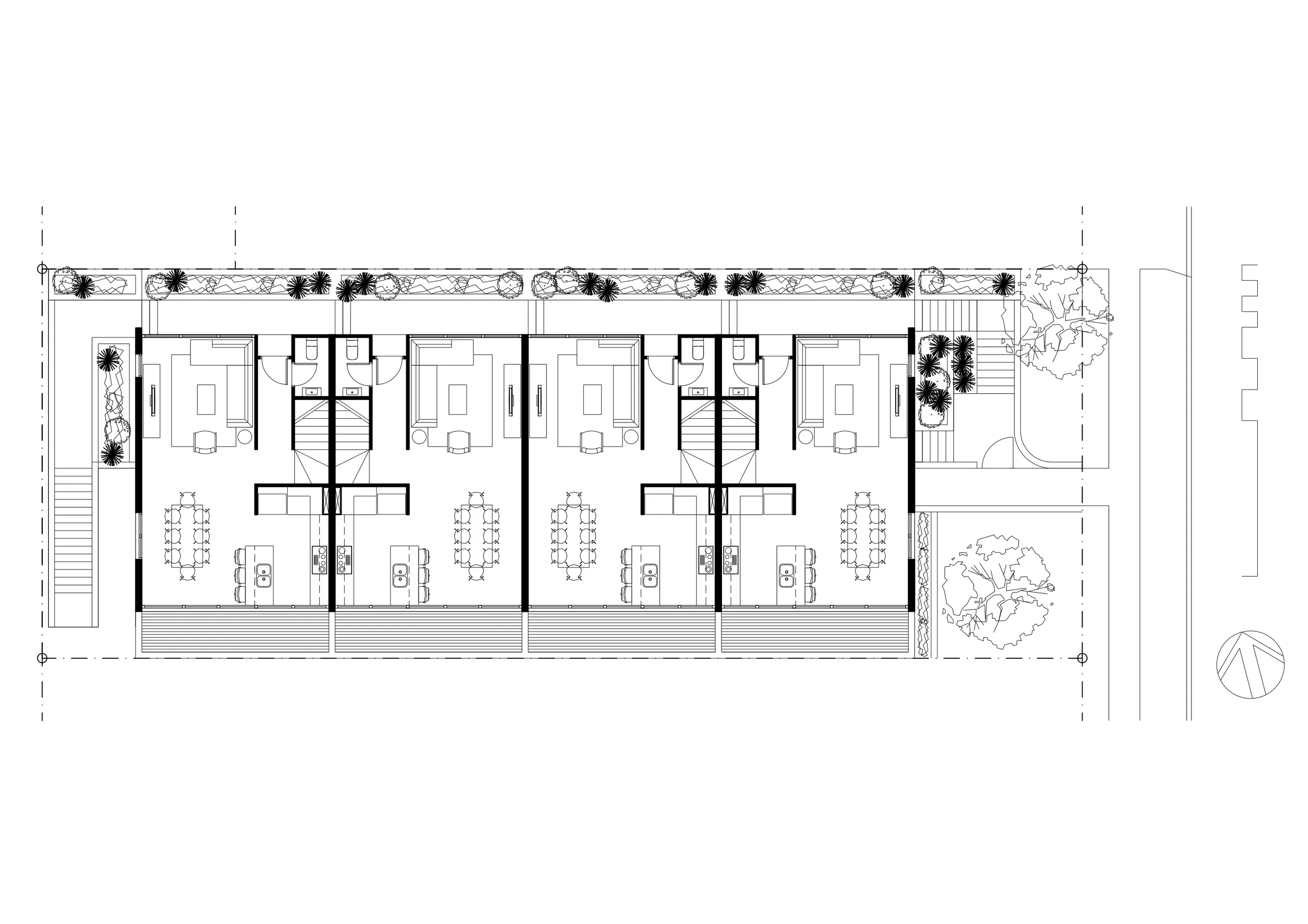
Located in one of Melbourne's middle ring suburbs, this project provides an architectural transition from the adjacent apartment building to the north and the neighbouring house to the South.

Four townhouses have been crafted onto the 454sqm site with the building form designed to reduce overshadowing, tapering to its southern neighbours, whilst also capturing light to the north.

Image copyright of Liam Radich Architecture Art & Design Pty Ltd.

 

 Image copyright of Liam Radich Architecture Art & Design Pty Ltd.

Image copyright of Liam Radich Architecture Art & Design Pty Ltd.

 Image copyright of Liam Radich Architecture Art & Design Pty Ltd.

Image copyright of Liam Radich Architecture Art & Design Pty Ltd.

 Image copyright of Liam Radich Architecture Art & Design Pty Ltd.

Image copyright of Liam Radich Architecture Art & Design Pty Ltd.

 Image copyright of Liam Radich Architecture Art & Design Pty Ltd.

Image copyright of Liam Radich Architecture Art & Design Pty Ltd.

1 2 3 4 5
Previous Next
 Located in one of Melbourne's middle ring suburbs, this project provides an architectural transition from the adjacent apartment building to the north and the neighbouring house to the South.  Four townhouses have been crafted onto the 454sqm site w
 Image copyright of Liam Radich Architecture Art & Design Pty Ltd.
 Image copyright of Liam Radich Architecture Art & Design Pty Ltd.
 Image copyright of Liam Radich Architecture Art & Design Pty Ltd.
 Image copyright of Liam Radich Architecture Art & Design Pty Ltd.
28 Twenty Sixth Ave,
Palm Beach, QLD, 4221,
Australia
0481 008 006 lraad@mail.com

Liam radich architecture, art & design pty LTd | 28 twenty sixth ave, palm beach, qld, 4221 | 0481 008 006