LRAAD
About Us Multi-Residential Residential Art & Design
Contact Us
About UsMulti-ResidentialResidentialArt & Design
LRAAD
Contact Us
 Image copyright of Liam Radich Architecture Art & Design Pty Ltd.
 Image copyright of Liam Radich Architecture Art & Design Pty Ltd.

Image copyright of Liam Radich Architecture Art & Design Pty Ltd.

 Image copyright of Liam Radich Architecture Art & Design Pty Ltd.

Image copyright of Liam Radich Architecture Art & Design Pty Ltd.

 Image copyright of Liam Radich Architecture Art & Design Pty Ltd.

Image copyright of Liam Radich Architecture Art & Design Pty Ltd.

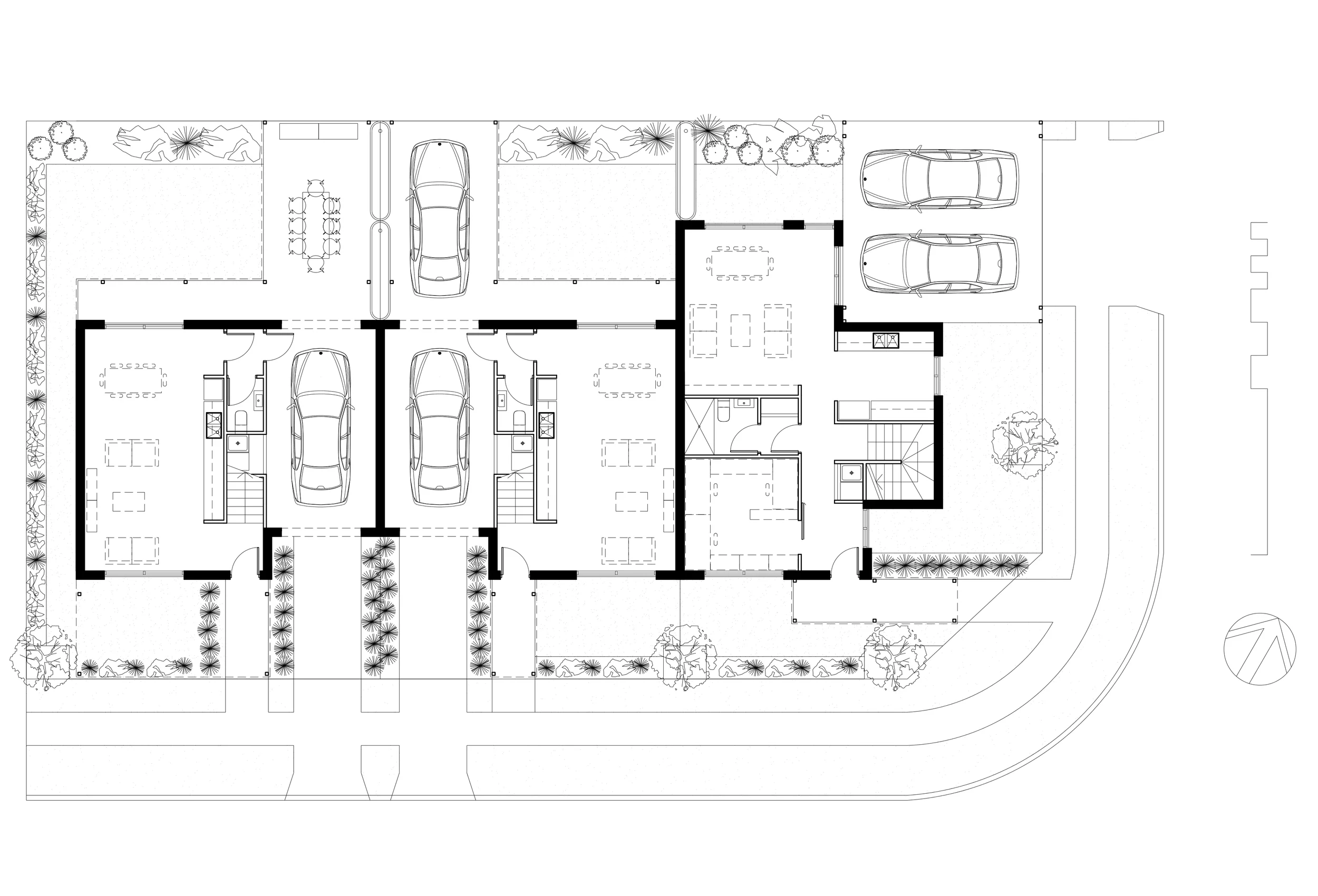
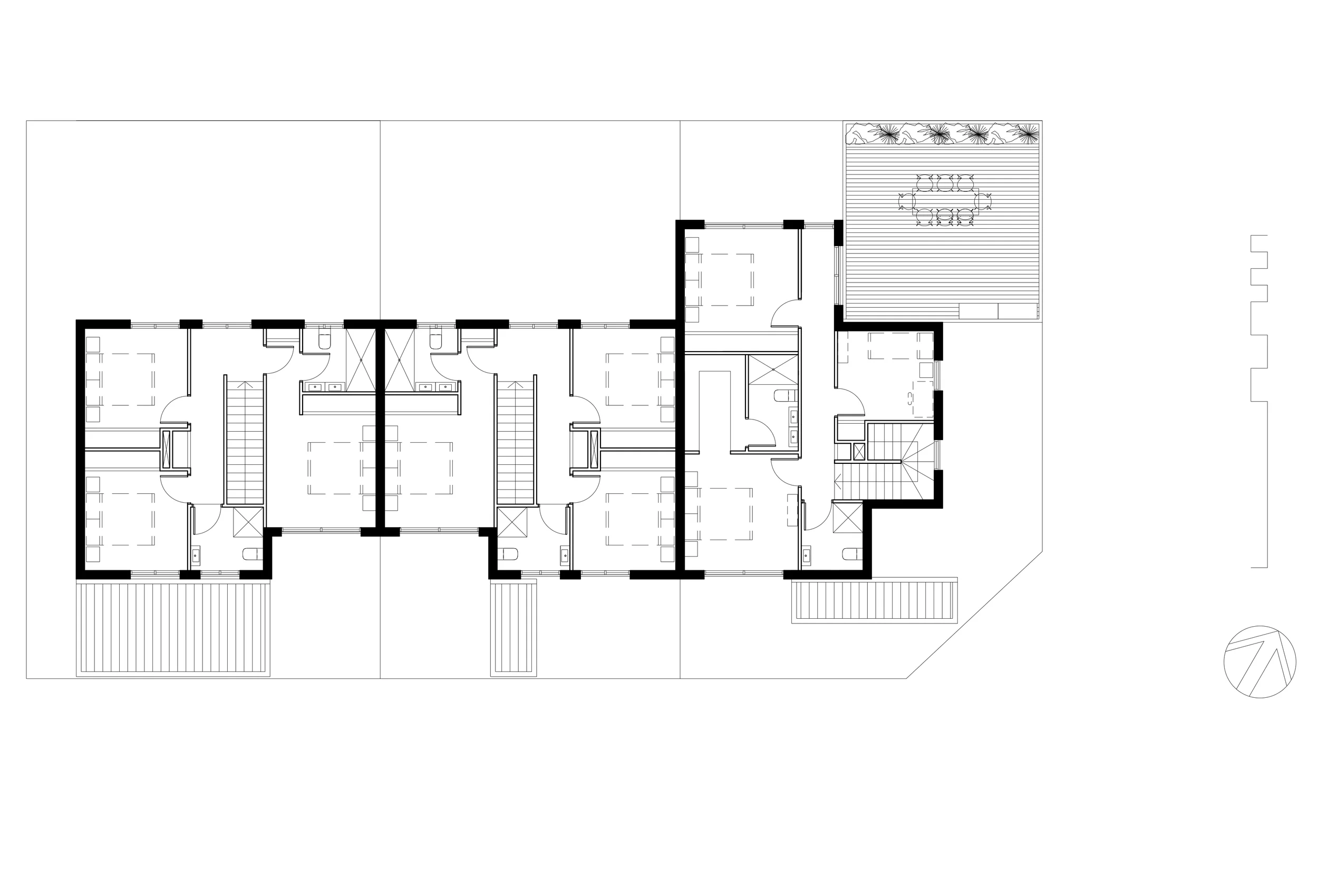
 Located on a 500sqm suburban lot, this small scale development provides three townhouses and a greater variety of housing solutions where once a large suburban house was located.  The materials selected for the project are low in embodied energ

Located on a 500sqm suburban lot, this small scale development provides three townhouses and a greater variety of housing solutions where once a large suburban house was located. The materials selected for the project are low in embodied energy and maintenance. Each of the townhouses allow for crossflow ventilation, carparking and private courtyard gardens for their residents.

Image copyright of Liam Radich Architecture Art & Design Pty Ltd.

 Image copyright of Liam Radich Architecture Art & Design Pty Ltd.

Image copyright of Liam Radich Architecture Art & Design Pty Ltd.

1 2 3 4 5
Previous Next
 Image copyright of Liam Radich Architecture Art & Design Pty Ltd.
 Image copyright of Liam Radich Architecture Art & Design Pty Ltd.
 Image copyright of Liam Radich Architecture Art & Design Pty Ltd.
 Located on a 500sqm suburban lot, this small scale development provides three townhouses and a greater variety of housing solutions where once a large suburban house was located.  The materials selected for the project are low in embodied energ
 Image copyright of Liam Radich Architecture Art & Design Pty Ltd.
28 Twenty Sixth Ave,
Palm Beach, QLD, 4221,
Australia
0481 008 006 lraad@mail.com

Liam radich architecture, art & design pty LTd | 28 twenty sixth ave, palm beach, qld, 4221 | 0481 008 006